Apartamento reformado y amueblado en la Barceloneta, Barcelona
Tour Status & Status: De 4% hasta 5%C/ de los Pescadores, Ciutat Vella Barcelona (Ciutat Vella, Barceloneta)
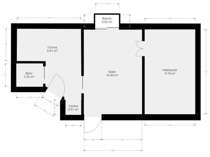
En el corazón de la Barceloneta, a pasos del mar y del Passeig Joan de Borbó, se encuentra este departamento reformado de 38 m² ubicado en una finca clásica sin ascensor y con pocos vecinos. Está situado en un primer piso real con orientación sureste, lo que garantiza buena luz natural y ventilación, y mantiene el encanto típico de las construcciones tradicionales del barrio.
La vivienda cuenta con un dormitorio, un baño completo, un salón cómodo con salida al balcón y una cocina independiente, lo que permite una distribución clara entre zonas de descanso y de uso diario. Se entrega amueblado y con las instalaciones actualizadas, con ventanas de aluminio, suelo de gres cerámico y gas natural ya instalado. Es una propiedad lista para entrar a vivir sin necesidad de reformas, lo que la convierte en una opción práctica tanto para uso propio como para alquiler convencional.
La Barceloneta es uno de los barrios más buscados de Barcelona, no solo por su cercanía a la playa, sino también por su ambiente de vida local, sus comercios de proximidad, la oferta gastronómica y la excelente conexión con el centro histórico y líneas de transporte. Este piso ofrece la oportunidad de vivir en una de las zonas más auténticas de la ciudad, con una relación ubicación–precio muy difícil de encontrar en el mercado actual.
|
¡ Contacta ahora !
*
*
*
*
*
|
|||||||||||||||||||||||||||||||||||||||||||||||||||||
Barceloneta: Céntrico, turístico, popular, pintoresco y a pocos paso de la playa.
Es un barrio pensado a principios del siglo XX para pescadores y de obreros. Hoy es un barrio popular y pintoresco de una intensa vida diurna y nocturna, es muy particular por sus manzanas estrechas y alargadas, a pocos pasos de la playa. Sus apartamentos son de tamaños de 30 a 40 metros cuadrados, muy turístico por excelencia, ideal para jóvenes estudiantes o turistas. Destacan sus clubs de actividades deportivas relacionadas con el mar: Club Naútico, Club Natación Barcelona, etc. En este barrio se encuentra la mejor renta en relación metro cuadrado.
|























